k1体育风扇教您如何辨别轴承结构?
散热风扇轴承结构的概述
1、双滚珠轴承结构
双滚珠轴承一般又细分为两类:
㈠前置弹簧结构
什么是前置弹簧结构?
一般散热风扇的双滚珠结构设计为:两颗滚珠轴承设一中央扣环隔开,再将弹簧置放于扇叶与第一颗滚珠之中间,藉以弹力产生轴承之预压,以利滚珠与保持器能够确切定位,不至产生内滚珠与保持器之滑移产生机械噪音。

㈡中置弹簧结构
什么是中置弹簧结构?
中置弹簧结构设计较适合风扇厚度约为25mm以上之结构,两颗滚珠轴承设一中央扣环及一弹簧隔开,且将弹簧置放于中央扣环与后滚珠之间,藉以弹力产生轴承之预压,以利滚珠与保持器能够确切定位,不至产生内滚珠与保持器之滑移产生机械噪音。

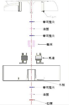
2、含油轴承结构
含油轴承结构为单一轴承及油圈搭配,以期避免润滑油之流失,轴承大多为气孔性铜线系含油轴承材质。

k1体育风扇秉承着:“诚信为本、质量第一、客户至上”的原则,注重人才的素质培养,吸纳行业优秀人才,研发技术力量雄厚,生产工艺成熟稳定,生产及检验设备齐全。能提供从开模、注塑、整机装配等一系列的服务。产品已远销香港、台湾、东南亚、欧美等地。是您理想的企业合作伙伴!
欢迎致电:0755-89600770,或登陆k1体育网址//chenkunmaoyi.com